Traumlage am Wasser – Bezugsfreie Doppelhaushälfte mit Garten und Garage

298.000 €
Kaufpreis
121 m²
Wohnfläche
5
Zimmer

Besonderheiten

Gäste WC
1 Stellplatz

Überblick

ImmoNr.
FL21-NB-1
Typ
Haus
Wohnfläche
121 m²
Zimmer
5
Schlafzimmer
4
Badezimmer
1

Bausubstanz & Energieverbrauch

Baujahr lt. Energieausweis
2001
Wesentlicher Energieträger
Gas
Energieverbrauchskennwert
100.50
Energieeffizienzsklasse
D
Energieausweis
Verbrauchsausweis

Objektbeschreibung

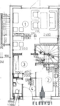
Bei dieser attraktiven Immobilie handelt es sich um eine im Jahr 2001 errichtete Doppelhaushälfte. Das voll unterkellerte Haus erstreckt sich über zwei Vollgeschosse sowie ein ausgebautes Dachgeschoss, wobei der Dachspitz zusätzliches Ausbaupotenzial bietet. Mit insgesamt fünf Zimmern und einer Wohnfläche von ca. 121 m² eignet sich das Objekt ideal für Familien.

Neben einem hellen Tageslichtbad mit Dusche und Badewanne steht ein separates Gäste-WC zur Verfügung. Das großzügige Kellergeschoss verfügt über einen zusätzlichen Ausgang, der direkt in den liebevoll angelegten Garten führt.

Das 468 m² große Grundstück überzeugt mit einer weitläufigen Terrasse, einer Garage sowie einem zusätzlichen Außenstellplatz. Ein besonderes Highlight ist der direkte Zugang zum See, der über den großzügigen Garten erreichbar ist. Die Uferlage am Bergbausee mit guter Wasserqualität schafft eine einzigartige Wohnatmosphäre und vermittelt ein dauerhaftes Urlaubsgefühl im eigenen Zuhause.

Lagebeschreibung

Bennstedt ist ein Ortsteil der Einheitsgemeinde Salzatal im sachsen-anhaltischen Saalekreis. Durch die Nähe zu den wirtschaftlich starken Städten Leipzig und Halle (Saale) sowie die hervorragende Anbindung über die B80 und die A143 zählt Bennstedt zu den besonders gefragten Wohnlagen der Region. Auch die Nähe zum Heiderand trägt zur hohen Lebensqualität bei.

Die Innenstadt von Halle ist in kurzer Zeit mit dem Auto erreichbar. Insgesamt präsentiert sich Bennstedt als lebendige und vielseitige Wohngegend mit guter Infrastruktur. Einrichtungen des täglichen Bedarfs sind schnell und unkompliziert erreichbar – dazu gehören Einkaufsmöglichkeiten, medizinische Versorgung, Apotheken, Banken, Postfilialen sowie Schulen und Kindergärten.

Ausstattung

* 5 Zimmer, darunter 4 Schlafzimmer – Ideal für Familien, ein Homeoffice oder Gästezimmer

* Separate Küche – Hält Kochgerüche und Geräusche vom Wohnbereich fern; optimal für alle, die gerne kochen

* Wohnzimmer mit Zugang zu Terrasse und Garten – Lichtdurchfluteter Wohnbereich mit direktem Ausgang ins Freie, perfekt zum Entspannen oder für gesellige Stunden

* Tageslichtbad mit Badewanne und Dusche – Komfortable Ausstattung mit natürlichem Licht und vielseitiger Nutzung

* Gäste-WC – Praktische Ergänzung für mehr Komfort und Privatsphäre

* Rollläden im Erdgeschoss – Bieten effektiven Sonnen- und Sichtschutz sowie ein Plus an Sicherheit

* Dachspitz mit Ausbaureserve – Möglichkeit zur Schaffung zusätzlicher Wohn- oder Arbeitsfläche und zur Wertsteigerung

* Voll unterkellert – Großzügiger Stauraum sowie Platz für Hobbys, Hauswirtschaft oder Fitness

* Garage und zusätzlicher Stellplatz im Freien – Bequemes Parken für mehrere Fahrzeuge und Schutz vor Witterung

* Direkter Zugang zum See – Hoher Freizeit- und Erholungswert mit exklusivem und seltenem Charakter

Karte

06198 in Salzatal-Bennstedt

Ihr Ansprechpartner

Frau Julia Heyer-Berndt
+49 176 31498935
julia.heyer-berndt@floor21-immobilien.de

Sofort-Anfrage

Informationen zum Umgang mit oben genannten Daten finden Sie in unserer Datenschutzerklärung.

* = Pflichtfeld

Entdecke unseren Zinsrechner!

Mit unserem benutzerfreundlichen Tool kannst Du schnell und unkompliziert einen ersten Eindruck von den aktuellen Konditionen für Deine Baufinanzierung erhalten. Einfach die gewünschten Parameter eingeben, und der Zinsrechner liefert Dir sofort eine Übersicht über mögliche Zinssätze – so kannst Du Deine Planung gezielt starten.

Bitte beachte: Die berechneten Zinssätze sind Richtwerte. Deine individuellen Konditionen hängen von vielen Faktoren ab, die wir gerne mit Dir in einem persönlichen Gespräch besprechen. Unser erfahrenes Finanziererteam steht Dir dabei zur Seite, um die besten Finanzierungslösungen für Dich zu finden.

Nutze den Zinsrechner als ersten Schritt und kontaktiere uns über „Jetzt starten“ für eine umfassende und persönliche Beratung. Wir freuen uns darauf, Dich auf Deinem Weg zu begleiten!“

Wir weisen darauf hin, dass mit der Aktivierung des Inhaltes Daten an den jeweiligen Anbieter übermittelt werden. Einzelheiten entnehmen Sie bitte der Datenschutzerklärung.

Inhalte anzeigen